3 Familienhaus im Herzen von Neuwied
Kauf
1 / 16

3 Familienhaus im Herzen von Neuwied

Neuwied
495.000 €
290 m² Wohnfläche
6 Zimmer
3 Schlafzimmer
3 Badezimmer

Objektbeschreibung

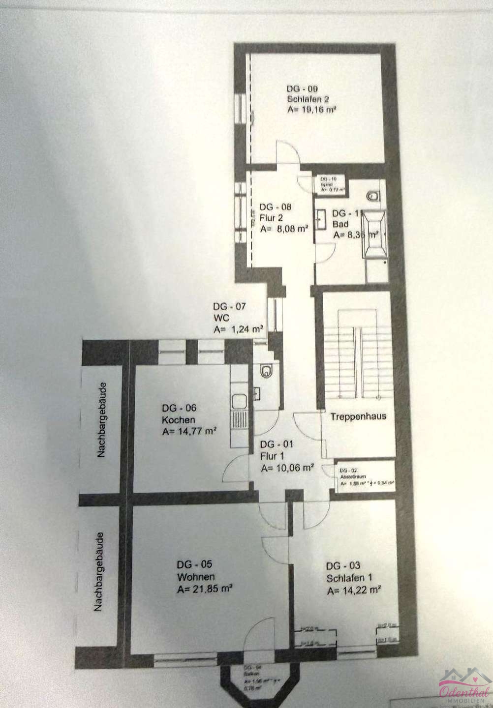
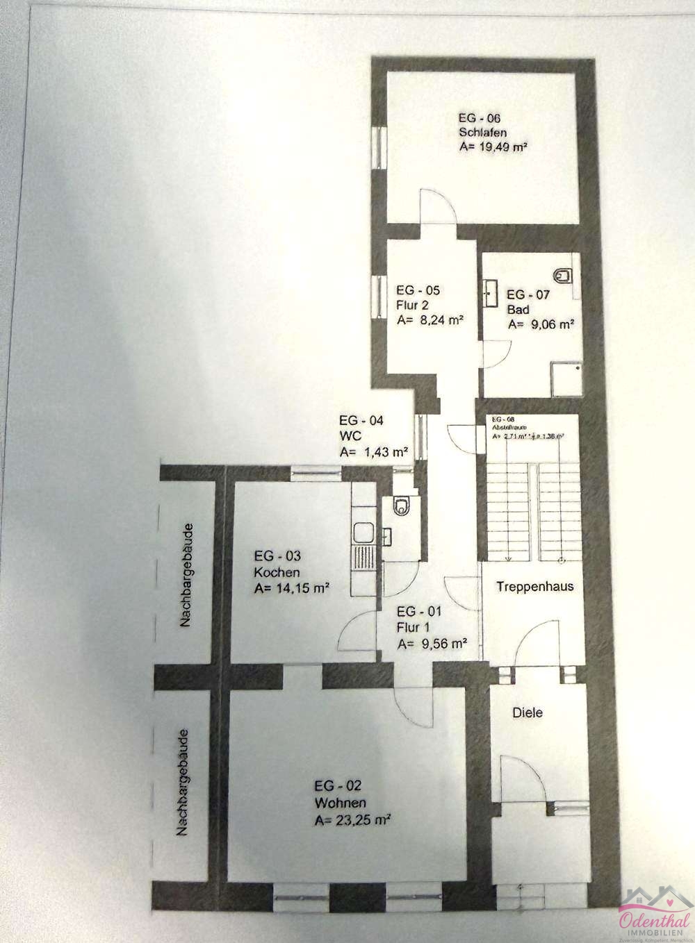
Charmantes Mehrfamilienhaus mit Altbauflair in begehrter Lage von Neuwied Dieses gepflegte und modernisierte Mehrfamilienhaus verbindet den unverwechselbaren Charme eines Altbaus mit zeitgemäßem Wohnkomfort. Auf einer Gesamtwohnfläche von rund 290 m² bietet das Objekt eine attraktive Investitionsmöglichkeit für Kapitalanleger, da es bereits vollständig vermietet ist und somit direkt Erträge erwirtschaftet. Die charakteristischen Holzdielenböden verleihen den Wohneinheiten eine warme, einladende Atmosphäre und unterstreichen den typischen Altbaucharakter des Hauses. Die Bäder präsentieren sich in modernem Zustand und wurden zeitgemäß gestaltet, sodass die Mieter hier ansprechenden Komfort genießen. Ein praktisches Gäste-WC rundet das Raumangebot ab. Zur Immobilie gehören außerdem ein nutzbarer Keller sowie ein Garten, der den Bewohnern eine willkommene Außenfläche zur Erholung bietet. Die Beheizung erfolgt über eine zuverlässige Gasetagenheizung, die eine effiziente und kostenbewusste Wärmeversorgung sicherstellt. Das Haus befindet sich in Neuwied und profitiert von der guten Infrastruktur der Region. Insgesamt handelt es sich um ein solides Renditeobjekt mit viel Charakter, das keine aufwendigen Sofortmaßnahmen erfordert und langfristige Stabilität als Kapitalanlage verspricht.

Objektdaten

Objekttyp Sonstige Immobilie
Verfügbar ab sofort
Wohnfläche 290 m²
Grundstücksfläche 255 m²
Zimmer 6
Schlafzimmer 3
Badezimmer 3
Baujahr 1910
Heizungsart Gas-Heizung
Energieklasse E

Ausstattungsmerkmale

Balkon
Terrasse
Garten
Garage
Stellplatz
Aufzug
Keller
Barrierefrei
Gäste-WC

Weitere Ausstattungsdetails

  • Gasetagenheizungen
  • Holzdielenboden
  • modernisierte Bäder
  • Dach teilweise 2022 neu
  • hohe Räume mit Altbaucharme
  • Garten
  • Kellerräume
  • 2 Räume im Anbau
  • Fenster 2 fach Kunststoff weiß
  • Ist-Miete ca 21.000/25.000

Lage & Umgebung

Neuwied am Rhein – eine Stadt mit Geschichte, Charme und einer Lage, die keine Wünsche offenlässt. Eingebettet zwischen dem majestätischen Rhein und den sanften Hügeln des Westerwaldes bietet Neuwied eine Lebensqualität, die städtischen Komfort mit naturnaher Erholung perfekt verbindet. Die Infrastruktur der Stadt überzeugt auf ganzer Linie: Supermärkte, Fachgeschäfte und das weitläufige Einkaufszentrum Rhein-Ahr-Eifel-Zentrum decken jeden Alltagsbedarf zuverlässig ab. Schulen aller Bildungsstufen, Kindergärten sowie medizinische Einrichtungen und Fachärzte sind in der gesamten Stadt gut erreichbar und sorgen für eine hervorragende Versorgung für Familien und Singles gleichermaßen. Kulturell hat Neuwied einiges zu bieten: Das barocke Stadtschloss, der weitläufige Schlosspark sowie zahlreiche Museen und Veranstaltungsorte prägen das lebendige Stadtbild. Entlang des Rheins laden gepflegte Uferpromenaden zu ausgedehnten Spaziergängen und Radtouren ein – Erholung direkt vor der Haustür. Die Verkehrsanbindung ist ausgezeichnet: Über die B256 und die nahegelegene A3 sowie A48 sind Koblenz, Köln und der Flughafen Frankfurt bequem erreichbar. Der öffentliche Nahverkehr verbindet Neuwied zuverlässig mit der gesamten Region. Neuwied vereint Lebensqualität, Natur und urbane Infrastruktur auf einzigartige Weise – ein idealer Standort für Ihre neue Immobilie.

Finanzierungsrechner

Monatliche Rate: 1.815,00 €

Finanzierungstipps

Die Berechnung dient nur zur ersten Orientierung. Für eine individuelle Beratung kontaktieren Sie uns gerne.

  • Eigenkapital: Mindestens 20% des Kaufpreises plus Nebenkosten
  • Zinsbindung: Längere Zinsbindung bei niedrigen Zinsen sichern
  • Tilgung: Höhere Tilgung verkürzt die Laufzeit
  • Fördermittel: KfW-Darlehen und regionale Förderprogramme prüfen
Finanzierungsberatung anfragen

Ähnliche Immobilien

4 Familienhaus inkl Ferienwohnung Kauf

4 Familienhaus inkl Ferienwohnung

Andernach

270 m² 9 Zimmer

549.000 €

1-2 Familienhaus in begehrter Lage Kauf

1-2 Familienhaus in begehrter Lage

Neuwied

228 m² 5 Zimmer Baujahr 1954

449.000 €

Großzügige Wohnung mitten in Feldkirchen Kauf

Großzügige Wohnung mitten in Feldkirchen

Neuwied

105 m² 3 Zimmer Baujahr 1980

250.000 €

Haben Sie Fragen zu dieser Immobilie?

Ich berate Sie gerne persönlich